Ampio Appartamento Vicino al Centro e ai Servizi con Terrazza e Garage.
RIF. D119

Donoratico

Caratteristiche Servizi Planimetria Contatti

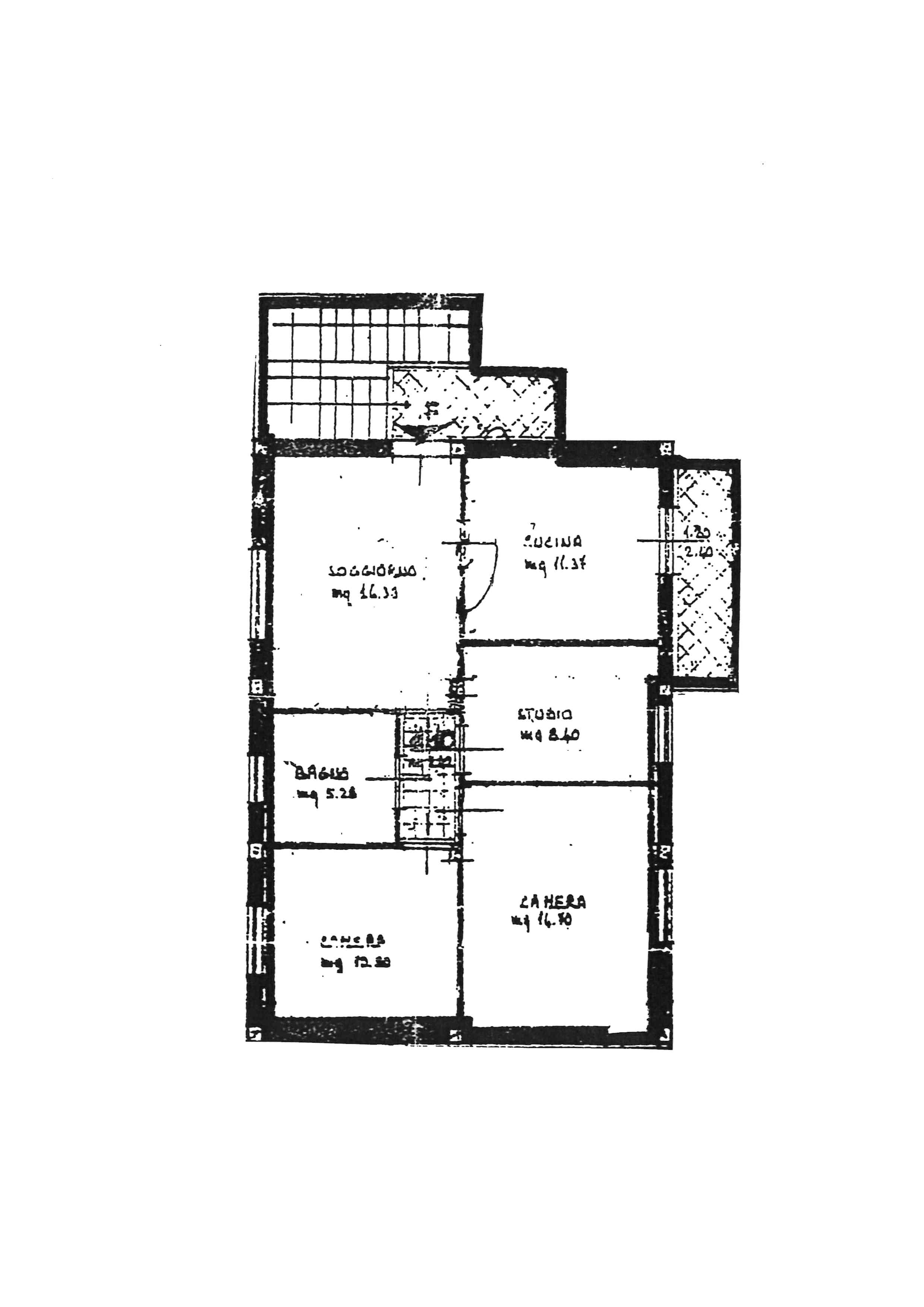
Donoratico - in zona tranquilla, residenziale, vicino al centro e ai servizi, proponiamo appartamento di  80 mq. c.a. posto al secondo piano con ingresso indipendente da  scala esterna.


L'appartamento e' composto da un ampio soggiorno, cucina abitabile con accesso ad una terrazza con vista colline, disimpegno, bagno con doccia finestrato, due camere matrimoniali e uno studio adibito a lavanderia.


Al piano terra completa la proprietà un garage di 27 mq. c.a. 


Riscaldamento autonomo a metano.


L'appartamento e' in ottime  condizioni e non necessita di nessun intervento di manutenzione.


Ideale  per residenza fissa ma anche come seconda casa al mare.

Caratteristiche della Casa

Camere da letto
2
Metri Quadri
80 c.a.
Numero Vani
4
Piano
Numero Bagni
1
Distanza dal mare
3200 m c.a.
Garage
27 mq. c.a.
Classe Energetica
G
Ipe
222,06
Terrazza
si

Servizi

Garage
Riscaldamento

Planimetria

Ricerca per RIF.

Trova la tua casa

Sei interessato a questo immobile?

IMMOBILIARE CASA&MARE
Via S. Pellico, 1
57022 Marina di Castagneto
Carducci (LI), Toscana - Italy

Via Circonvallazione, 29
Cecina (LI), Toscana - Italy

Tel. 0565.745061
Whatsapp: 0565 745061

E-mail: casaemare@casaemare.com

Per avere informazioni via e-mail può utilizzare il modulo sottostante. Sarà nostro piacere risponderle al più presto. Grazie.