Terra Tetto Angolare con Ingresso Indipendente da Giardino Privato e Posto Auto.
RIF. M251

Marina di Castagneto Carducci

Caratteristiche Servizi Planimetria Contatti

Marina di Castagneto Carducci – Terratetto angolare, su due livelli con giardino privato

A Marina di Castagneto Carducci, a circa 800 metri dalla spiaggia, proponiamo in vendita un delizioso appartamento disposto su due livelli, per una superficie di circa 90 mq commerciali, perfetto sia come abitazione principale sia come casa per le vacanze.

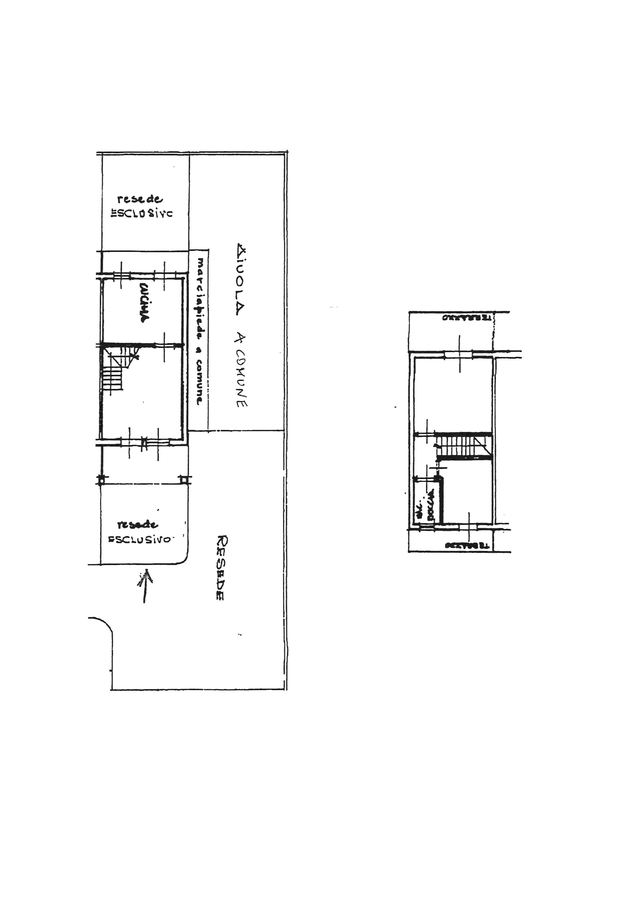
AL piano terra, con ingresso da giardino e porticato si apre una zona giorno ampia e luminosa con soggiorno e cucina, al primo piano, la zona notte è composta da due camere da letto, entrambe servite da balcone e un bagno finestrato. La distribuzione degli ambienti è funzionale e garantisce una piacevole vivibilità degli spazi.

All’esterno la proprietà dispone di un giardino esclusivo frontale e tergale, completo di gazebo, ideale per momenti di relax, pranzi e cene all’aperto durante tutto l’anno.

L’immobile è dotato di impianto di climatizzazione con pompe di calore caldo/freddo ed è immediatamente abitabile.

Posto auto di proprietà.

Caratteristiche della Casa

Camere da letto
2
Porticato
1
Metri Quadri
90 c.a.
Numero Vani
4
Piano
Terra
Numero Bagni
1
Balcone
2
Posti Auto
1
Distanza dal mare
800 m c.a.
Classe Energetica
G
Ipe
222,06
Giardino mq. c.a.
40

Servizi

Climatizzatore
Giardino
Posto auto
Riscaldamento

Planimetria

Ricerca per RIF.

Trova la tua casa

Sei interessato a questo immobile?

IMMOBILIARE CASA&MARE
Via S. Pellico, 1
57022 Marina di Castagneto
Carducci (LI), Toscana - Italy

Via Circonvallazione, 29
Cecina (LI), Toscana - Italy

Tel. 0565.745061
Whatsapp: 0565 745061

E-mail: casaemare@casaemare.com

Per avere informazioni via e-mail può utilizzare il modulo sottostante. Sarà nostro piacere risponderle al più presto. Grazie.