VENDITA MARINA DI CASTAGNETO CARDUCCI DONORATICO - TRILOCALE AL 1° PIANO IN NUOVA COSTRUZIONE
RIF. M135

Marina di Castagneto Carducci

Caratteristiche Servizi Planimetria Contatti

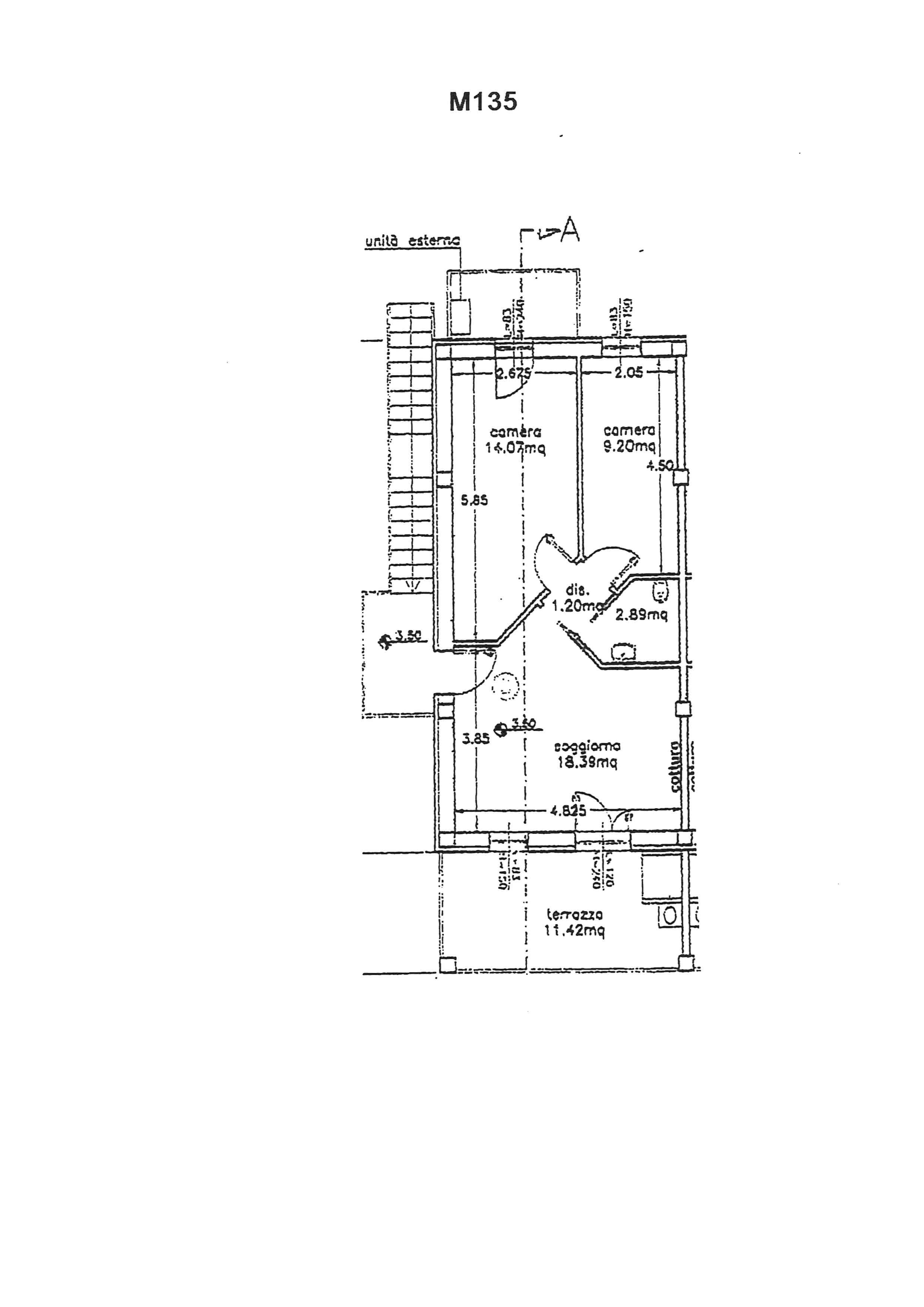
Marina di Castagneto Carducci - Marina di Donoratico - In palazzina di Sole Quattro Unita', disponiamo di appartamento TRILOCALE AL 1° PIANO  in Nuova Costruzione, con  Ingresso Indipendente.


L' immobile ha ingresso indipendente da giardino privato con comode scale esterne, dispone di spazio esterno frontale  ed è composto da soggiorno/cottura, terrazza coperta abitabile, due camere da letto, balcone e bagno finestrato con doccia.


 Rifiniture di pregio, Impianto fotovoltaico,  pompa di calore incorporata in boiler  per la produzione di acqua calda sanitaria,  climatizzatore caldo e freddo.


L' immobile e' realizzato con struttura portante antisismica, insonorizzato, coibentato a norma di legge, rifinito con ottimi materiali, porte scorrevoli, infissi in pvc e portone blindato.


Posto auto assegnato


Classe Energetica A +++

Caratteristiche della Casa

Camere da letto
2
Porticato
SI
Metri Quadri
55 c.a.
Numero Vani
3
Piano
Numero Bagni
1
Balcone
1
Posti Auto
1 assegnato
Distanza dal mare
1700 m c.a.
Classe Energetica
A+++
Ipe
7,70
Terrazza
SI
Giardino mq. c.a.
30

Servizi

Climatizzatore
Fotovoltaico
Giardino
Posto auto
Riscaldamento

Planimetria

Ricerca per RIF.

Trova la tua casa

Sei interessato a questo immobile?

IMMOBILIARE CASA&MARE
Via S. Pellico, 1
57022 Marina di Castagneto
Carducci (LI), Toscana - Italy

Via Circonvallazione, 29
Cecina (LI), Toscana - Italy

Tel. 0565.745061
Whatsapp: 0565 745061

E-mail: casaemare@casaemare.com

Per avere informazioni via e-mail può utilizzare il modulo sottostante. Sarà nostro piacere risponderle al più presto. Grazie.