Appartamento di recente costruzione del 2021 (come nuovo) al piano terra ingresso indipendente da giardino privato e posto auto.
RIF. M115

Marina di Castagneto Carducci

Caratteristiche Servizi Planimetria Contatti

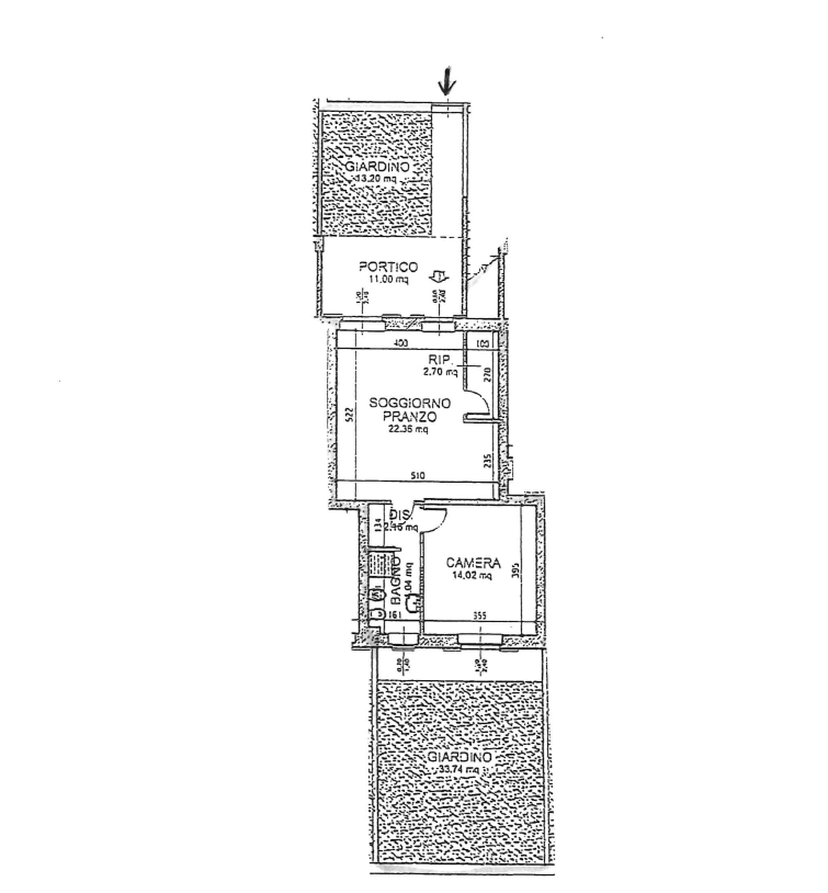
Vendesi Appartamento realizzato nel 2021 (come nuovo) a Marina di Castagneto Carducci,  a poca distanza dalla spiaggia del Seggio.                                                                                                                                                                                               L'unità immobiliare è parte di un fabbricato di solo sei unità abitative, si sviluppa al piano terra e dispone di un ampio porticato, con ingresso indipendente da giardino privato.

L'appartamento ha un spazioso  soggiorno da cui si accede direttamente al porticato ideale per mangiare all'aperto, ripostiglio e cucina a vista.

Dal soggiorno, tramite un disimpegno si accede alla camera matrimoniale con  uscita su un piacevole giardino tergale,  bagno con doccia  finestrato.                                                                                                                                                              

Completa la proprieta' un posto auto in uso esclusivo .

L'appartamento è classificato in classe energetica A  con  tutte le finiture sono di alta qualità, comprendendo infissi con doppio vetro a camera, zanzariere, portone blindato, impianto di climatizzazione caldo/freddo e impianto fotovoltaico.
La soluzione, attualmente pronta per essere abitata,può essere venduta arredata, a seconda delle preferenze finali del cliente.                                                                                                                                                                                                          Si precisa che, per l'acquisto del presente appartamento, le imposte si calcolano sulla rendita catastale, risultando quindi significativamente inferiori rispetto all'acquisto di un immobile di nuova costruzione.
Questa differenza di costo rappresenta un vantaggio significativo per l'acquirente.

Caratteristiche della Casa

Camere da letto
1
Porticato
SI
Metri Quadri
56 c.a.
Numero Vani
2
Piano
Terra
Numero Bagni
1
Posti Auto
1
Distanza dal mare
1700 m c.a.
Classe Energetica
A
Giardino mq. c.a.
80

Servizi

Arredamento
Climatizzatore
Fotovoltaico
Giardino
Posto auto
Riscaldamento

Planimetria

Ricerca per RIF.

Trova la tua casa

Sei interessato a questo immobile?

IMMOBILIARE CASA&MARE
Via S. Pellico, 1
57022 Marina di Castagneto
Carducci (LI), Toscana - Italy

Via Circonvallazione, 29
Cecina (LI), Toscana - Italy

Tel. 0565.745061
Whatsapp: 0565 745061

E-mail: casaemare@casaemare.com

Per avere informazioni via e-mail può utilizzare il modulo sottostante. Sarà nostro piacere risponderle al più presto. Grazie.