Cecina Palazzaccio - Appartamenti di Nuova Costruzione con Garage e Spazio Esterno
RIF. CE250

Caratteristiche Servizi Planimetria Contatti

 

 

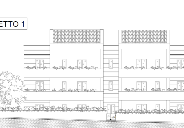
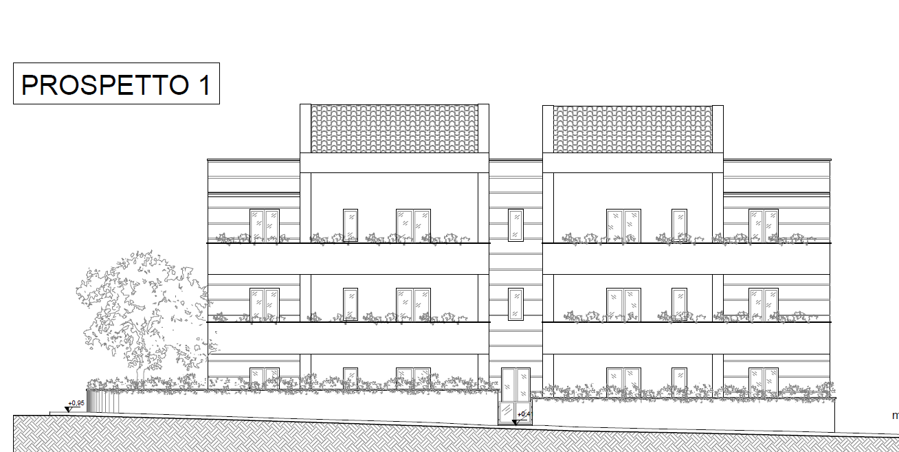
APPARTAMENTI DI NUOVA COSTRUZIONE

Proponiamo appartamenti di nuova costruzione in contesto residenziale tranquillo e silenzioso.

Il condominio sarà servito da ascensore e tutte le unità avranno garage e cantina di proprietà poste al piano seminterrato. Gli immobili sono in costruzione e verranno completati entro la primavera 2026.

 

QUADRILOCALE SECONDO PIANO CON AMPIA TERRAZZA:

L'appartamento è composto da ampio soggiorno, cucina,  due camere da letto matrimoniali e bagno finestrato. La mansarda di circa 56 mq al secondo piano offre ulteriori possibilità di utilizzo, ideale come studio o da utilizzare come camera aggiuntiva.

Al piano secondo sono presente 4 terrazze e dalla mansarda abbiamo accesso ad un’ulteriore terrazza di circa 30 mq

Completano la soluzione una comoda cantina ed un garage posto al piano seminterrato.

Richiesta € 535.000

 

TRILOCALE PIANO TERRA CON AMPIO GIARDINO:

L'appartamento è composto da ampio soggiorno, cucina, due camere da letto matrimoniali e due bagni finestrati. L’appartamento ha giardino privato su tre lati, una parte verrà lastricata per poterne godere a pieno utilizzandolo come area relax zona pranzo/cena.

Completano la soluzione una comoda cantina ed un garage posto al piano seminterrato.

Richiesta € 387.000

Caratteristiche della Casa

Camere da letto
2
Porticato
SI
Metri Quadri
88 c.a.
Piano
T-2
Numero Bagni
2
Posti Auto
1
Garage
SI
Classe Energetica
A++++
Ipe
7,70
Terrazza
SI
Giardino mq. c.a.
SI
Cantina
SI

Servizi

Cantina
Climatizzatore
Garage
Giardino
Posto auto
Riscaldamento

Planimetria

Ricerca per RIF.

Trova la tua casa

Sei interessato a questo immobile?

IMMOBILIARE CASA&MARE
Via S. Pellico, 1
57022 Marina di Castagneto
Carducci (LI), Toscana - Italy

Via Circonvallazione, 29
Cecina (LI), Toscana - Italy

Tel. 0565.745061
Whatsapp: 0565 745061

E-mail: casaemare@casaemare.com

Per avere informazioni via e-mail può utilizzare il modulo sottostante. Sarà nostro piacere risponderle al più presto. Grazie.