Ampio Trilocale al Piano Terra con Grande Giardino Angolare e Posto Auto
RIF. M116

Marina di Castagneto Carducci

Caratteristiche Servizi Planimetria Contatti

Marina di Castagneto Carducci - zona Cavallino Matto, a poca distanza dalla pista ciclabile per raggiungere comodamente il mare, si vende ampio trilocale al piano terra angolare con grande giardino attrezzato di tenda solarium, pergolato per stare e mangiare fuori, lavabo in muratura, barbecue ed una casetta in legno per il ricovero biciclette , attrezzi e con attacco della lavatrice.

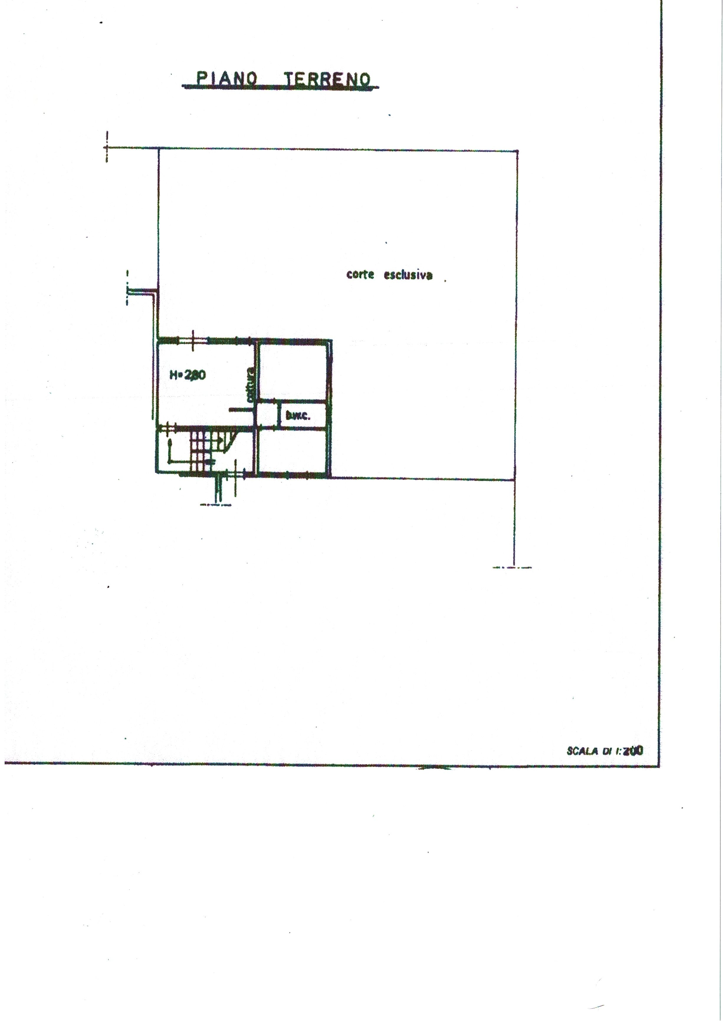
L'appartamento  si compone di grande soggiorno con cucina a vista con accesso all'ampio giardino angolare, disimpegno per la zona notte  dotata di due camere matrimoniali e  bagno finestrato con doccia. 

Ristrutturato, ha un' ottima esposizione per cui gode di una luminosità eccezionale durante tutto l'arco della giornata.

Termoautonomo a g.p.l.

Posto auto scoperto di fronte alla proprieta' .

Caratteristiche della Casa

Camere da letto
2
Metri Quadri
86 c.a.
Numero Vani
3
Piano
Terra
Numero Bagni
1
Posti Auto
1
Distanza dal mare
900 m c.a.
Classe Energetica
G
Ipe
456
Giardino mq. c.a.
120

Servizi

Barbecue
Giardino
Posto auto
Riscaldamento

Planimetria

Ricerca per RIF.

Trova la tua casa

Sei interessato a questo immobile?

IMMOBILIARE CASA&MARE
Via S. Pellico, 1
57022 Marina di Castagneto
Carducci (LI), Toscana - Italy

Via Circonvallazione, 29
Cecina (LI), Toscana - Italy

Tel. 0565.745061
Whatsapp: 0565 745061

E-mail: casaemare@casaemare.com

Per avere informazioni via e-mail può utilizzare il modulo sottostante. Sarà nostro piacere risponderle al più presto. Grazie.