In un Complesso Residenziale Trilocale Luminoso al 1° Piano con Grande Terrazza
RIF. M123

Marina di Castagneto Carducci

Caratteristiche Servizi Planimetria Contatti

Marina di Castagneto Carducci - in un piccolo complesso residenziale che dispone di piscine per adulti e bambini oltre a campo da tennis,  nel verde, a soli 900 mt. c.a. dalla spiaggia facilmente raggiungibile con la bicicletta, disponiamo di appartamento,  tipologia trilocale, ubicato al  primo piano.


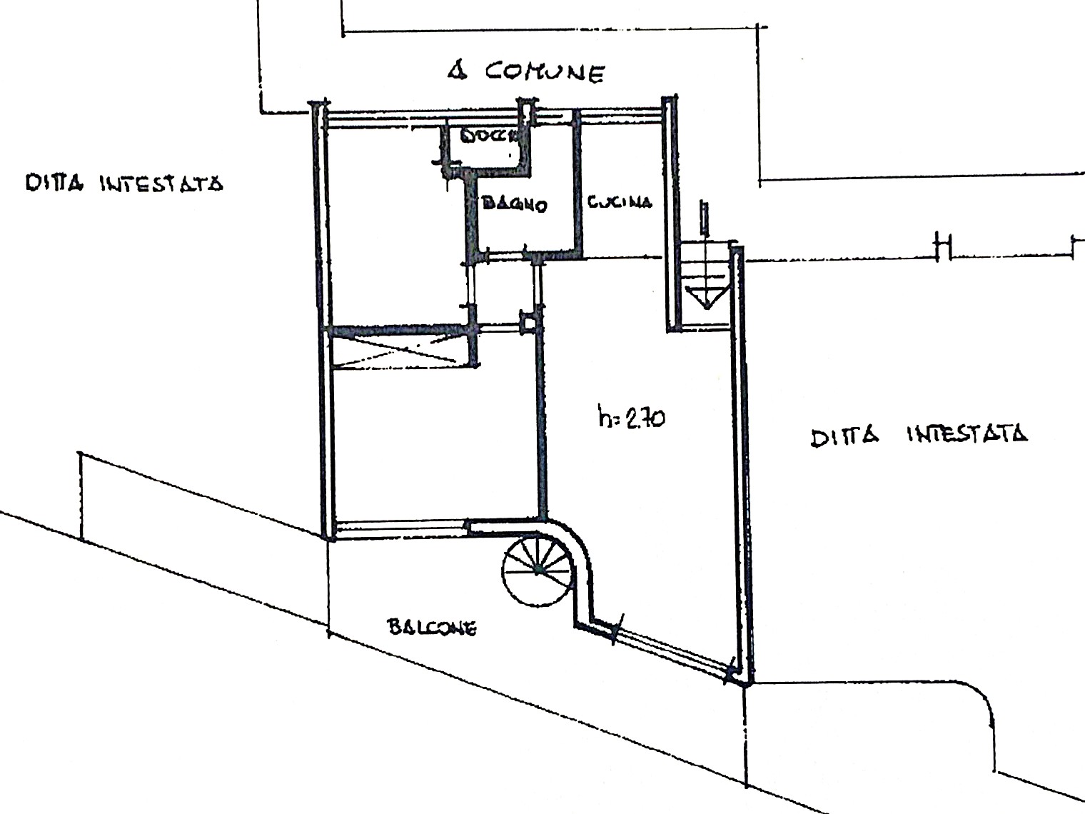
L'appartamento si compone di:  ampio e luminoso  soggiorno con accesso ad una grande terrazza dalla quale con scala si raggiunge un ulteriore terrazzo a tetto, cucina, camera matrimoniale, bagno finestrato con doccia, seconda camera con ripostiglio finestrato adibito a bagno.

Posto auto di proprieta'.

 Pompa di calore  caldo freddo.

  Ben orientato, silenzioso,  in buone condizioni,  non necessita di nessun intevervento di ristrutturazione,  pronto per essere abitato.


Caratteristiche della Casa

Piscina
si condominiale
Camere da letto
2
Metri Quadri
65 c.a.
Numero Vani
3
Piano
Numero Bagni
2
Posti Auto
1
Distanza dal mare
900 m c.a.
Classe Energetica
G
Ipe
222,8
Terrazza
si

Servizi

Climatizzatore
Posto auto
Riscaldamento

Planimetria

Ricerca per RIF.

Trova la tua casa

Sei interessato a questo immobile?

IMMOBILIARE CASA&MARE
Via S. Pellico, 1
57022 Marina di Castagneto
Carducci (LI), Toscana - Italy

Via Circonvallazione, 29
Cecina (LI), Toscana - Italy

Tel. 0565.745061
Whatsapp: 0565 745061

E-mail: casaemare@casaemare.com

Per avere informazioni via e-mail può utilizzare il modulo sottostante. Sarà nostro piacere risponderle al più presto. Grazie.