Appartamento con Mansarda - Ingresso Indipendente da Giardino Privato e Posto Auto.
RIF. M114

Marina di Castagneto Carducci

Caratteristiche Servizi Planimetria Contatti

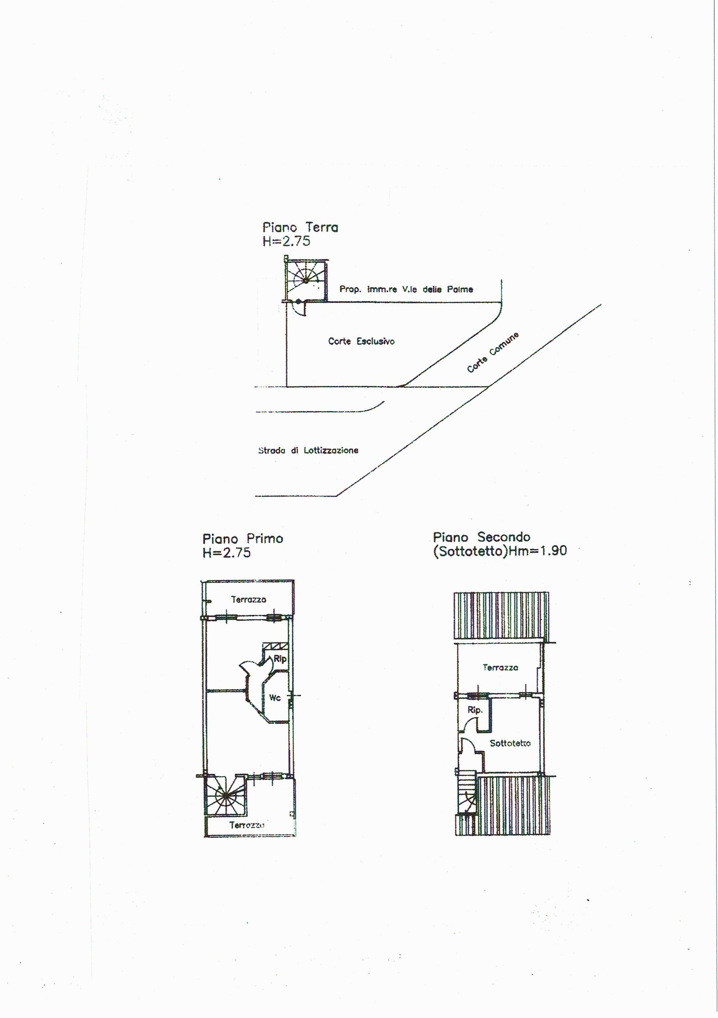
Marina di Castagneto Carducci - Zona Viale delle Palme - In zona residenziale, silenziosa e comoda al mare raggiungibile a piedi disponiamo di appartamento angolare posto al piano primo con ingresso indipendente da giardino privato al piano terra.

Salendo con ampia e comoda scala interna, arriviamo al primo piano dove  troviamo il soggiorno con angolo cottura  con accesso ad un' ampia terrazza pranzabile coperta, disimpegno, camera matrimoniale con terrazza, vano finestrato adibito a cameretta, bagno con doccia finestrato.

Dal soggiorno mediante le scale si accede ad un'ampia mansarda, dove troviamo un vano adibito a bagno finestrato con doccia ed un' ampia terrazza solarium.

Riscaldamento autonomo  a metano.

Posto auto di proprietà scoperto.

Nel giardino recintato è presente un barbecue in muratura.

L'appartamento ben luminoso e con vista sulla pineta e' in ottime condizioni e non necessita di nessun intervento di manutenzione.

Caratteristiche della Casa

Camere da letto
2
Metri Quadri
70 c.a.
Numero Vani
4
Piano
Numero Bagni
2
Mansarda
si
Posti Auto
1
Distanza dal mare
400 m c.a.
Classe Energetica
G
Ipe
222,8
Terrazza
3
Giardino mq. c.a.
30

Servizi

Barbecue
Giardino
Posto auto
Riscaldamento

Planimetria

Ricerca per RIF.

Trova la tua casa

Sei interessato a questo immobile?

IMMOBILIARE CASA&MARE
Via S. Pellico, 1
57022 Marina di Castagneto
Carducci (LI), Toscana - Italy

Via Circonvallazione, 29
Cecina (LI), Toscana - Italy

Tel. 0565.745061
Whatsapp: 0565 745061

E-mail: casaemare@casaemare.com

Per avere informazioni via e-mail può utilizzare il modulo sottostante. Sarà nostro piacere risponderle al più presto. Grazie.