Terra Tetto Angolare con Ingresso Indipendente da Grande Giardino Privato e Posti Auto.
Wohntyp. M104

Marina di Castagneto Carducci

Eigenschaften Dienstleistungen Planimetrie Kontakte

Marina di Castagneto Carducci – Via Modena – Viale delle Palme


In ruhiger Lage mit guter Anbindung an alle wichtigen Einrichtungen bieten wir Ihnen ein einladendes Eckreihenhaus mit ca. 90 m² Wohnfläche zum Kauf an. Das Haus wurde kürzlich renoviert und verfügt über einen separaten Eingang, der zu einem großen, privaten Garten mit Außendusche führt – ideal für ungestörtes Wohnen im Freien.


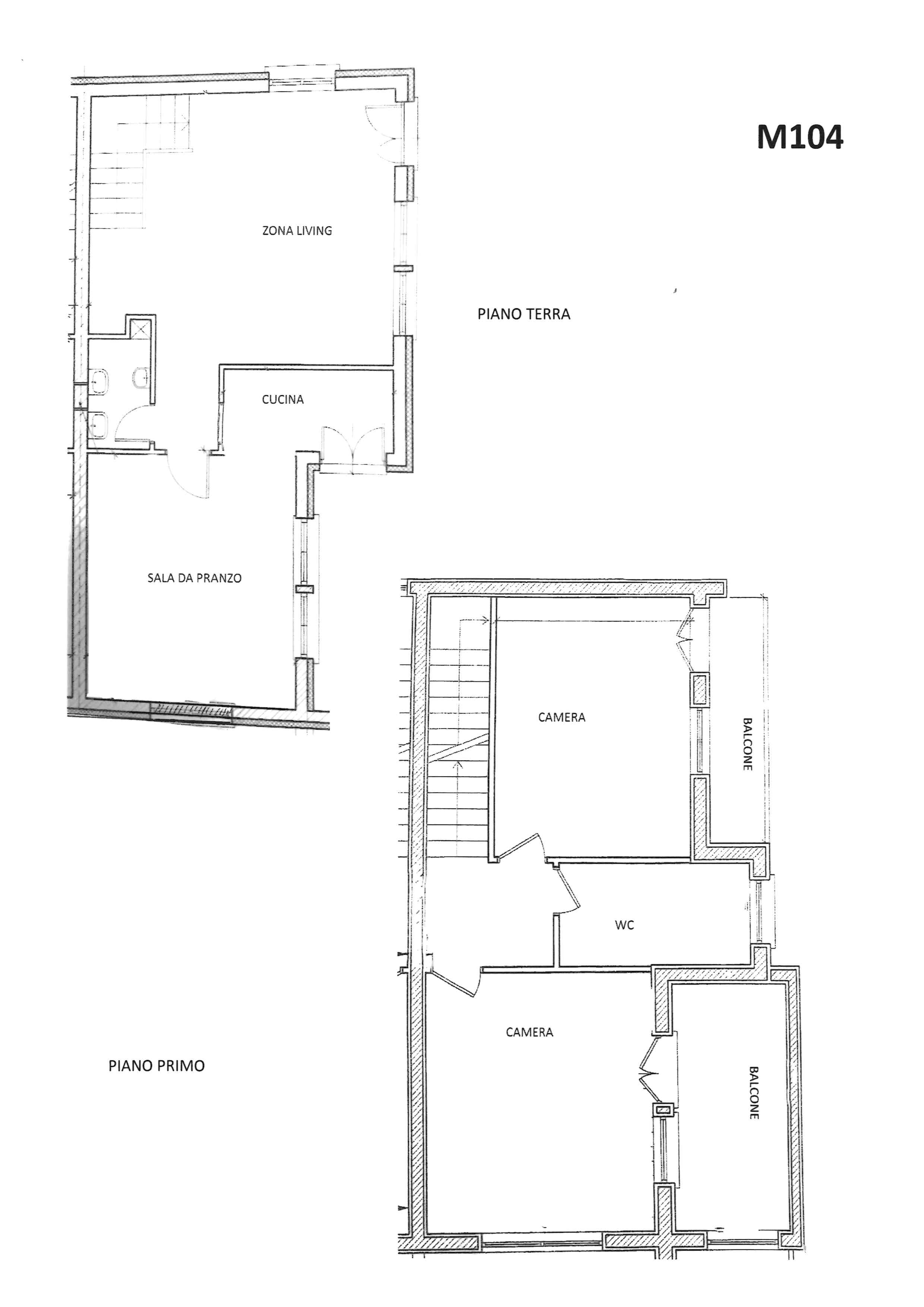
Das Haus erstreckt sich über zwei Etagen. Im Erdgeschoss befinden sich ein helles Wohnzimmer, ein Gäste-WC, ein Esszimmer und eine praktische Küchenzeile mit direktem Zugang zur Veranda und zum Garten. So entsteht ein harmonischer Übergang zwischen Innen- und Außenbereich.


Über eine bequeme Treppe gelangen Sie in das Obergeschoss mit zwei geräumigen Doppelschlafzimmern, jeweils mit Zugang zu einer eigenen Terrasse, und einem Badezimmer mit Fenster und Dusche.


Das Haus ist mit einer unabhängigen Gasheizung und einer Klimaanlage (warm/kalt) ausgestattet und bietet Ihnen zu jeder Jahreszeit Komfort.


Mehrere Parkplätze stehen zur Verfügung: einer am Eingang und mehrere im Garten.

Eigenschaften der Wohnung

Schlafzimmer
2
veranda
Si
Quatratmeter
90 c.a.
Nr. Zimmer
5
Plan
Terra + 1° Piano
Numer Badezimmer
2
Parkplatz
3
Entfernung vom Meer
900 m c.a.
C E 198.99
Terrasse
2
Garten
60

Dienstleistungen

Klimaanlage
garten
parking space
Heizung

Planimetrie

Suche nach Wohntyp

Trova la tua casa

Sei interessato a questo immobile?

IMMOBILIARE CASA&MARE
Via S. Pellico, 1
57022 Marina di Castagneto
Carducci (LI), Toscana - Italy

Via Circonvallazione, 29
Cecina (LI), Toscana - Italy

Tel. 0565.745061
Whatsapp: 0565 745061

E-mail: casaemare@casaemare.com

"Für Informationen per E-Mail können Sie das folgende Formular verwenden. Wir werden uns freuen, Ihnen so schnell wie möglich zu antworten. Vielen Dank.